|
Adelaide's Floor
Plan People
(We measure and we construct - to anywhere in Adelaide
and South Australia)
Do you need a Floor Plan
drawn? We will
measure your home/ property/ business
with our
laser tape measure. The
largest we can do is an average sized house.
(Click here
for Virtual tours examples)
If you are
selling your house, we can
create a floor plan for
your property.
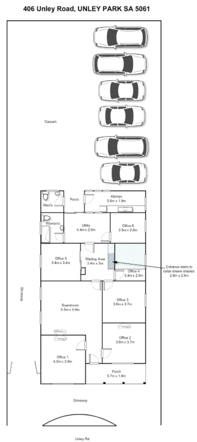
We also build floorplans for offices and small commercial
properties.
Click
here
for Licensed Premises or Council
Applications
Click
here
for Commercial and Industrial floorplans
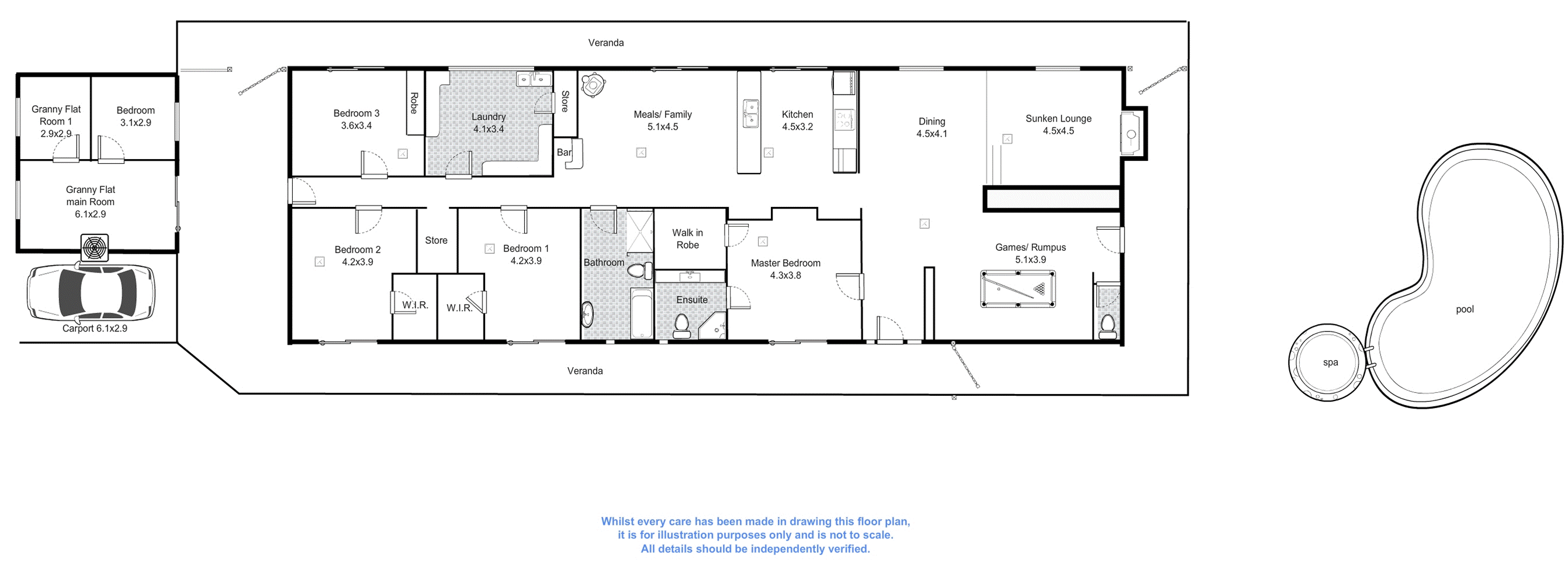
Below are examples of
our Floor Plans:
Click on
image to expand


Contact us to book your Floor
Plan
FLOOR PLAN PRICES:
Redraw of existing plan or sketch: $80 On-site drawing, and usually delivery of finished
product within 24-48 hours 1-2 Bedroom is $95*;
3-4 Bedrooms is $120*,
5+ Bedrooms $150*
*
Within 20km radius of our Floor Plan office in Belair SA
* All prices include GST
|
|